Новая фаза на Palm Jebel Ali
Palm Jebel Ali, Дубай

Новая фаза на Palm Jebel Ali

Застройщик Nakheel Properties объявил о строительстве новой фазы на Palm Jebel Ali в Дубае. Ожидаемая дата завершения приходится на 2028 год.

Стартовая цена
25m
Сдача
Q4 2028
Количество объектов
2002

Обзор проекта

Застройщик Nakheel Properties объявил о строительстве новой фазы на Palm Jebel Ali в Дубае. Ожидаемая дата завершения приходится на 2028 год. Новая фаза будет включать четыре ветви, где будут расположены роскошные виллы и особняки с 5–7 спальнями. У каждой виллы будет отдельный вход. Начальная цена на недвижимость в новой фазе на Palm Jebel Ali — AED 25 млн (USD 6.3 млн). Застройщик предлагает покупателям план платежей 80/20. Помимо элитной недвижимости на Palm Jebel Ali будут построены 4 новых торговых центра и 18 отелей и курортов.

  • Локация
  • Застройщик
  • Тип недвижимости
    Виллы
  • Количество спален
    5-6
  • Площадь от
  • Сдача
    Q4 2028
  • План оплаты
    80/20
  • Количество объектов
    2002

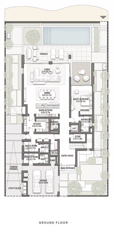
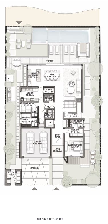
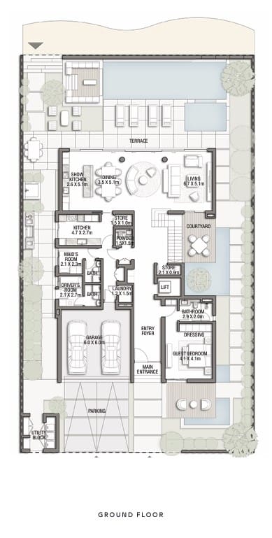
Поэтажные планы

5 Спальни

Виллы

Floor plan
Стартовая цена: По запросу
Жилая площадь:

5 Спальни

Виллы

Floor plan
Стартовая цена: По запросу
Жилая площадь:

5 Спальни

Виллы

Floor plan
Стартовая цена: По запросу
Жилая площадь:

5 Спальни

Виллы

Floor plan
Стартовая цена: По запросу
Жилая площадь:

5 Спальни

Виллы

Floor plan
Стартовая цена: По запросу
Жилая площадь:

6 Спальни

Виллы

Floor plan
Стартовая цена: По запросу
Жилая площадь:

6 Спальни

Виллы

Floor plan
Стартовая цена: По запросу
Жилая площадь:

6 Спальни

Виллы

Floor plan
Стартовая цена: По запросу
Жилая площадь:

6 Спальни

Виллы

Floor plan
Стартовая цена: По запросу
Жилая площадь:

6 Спальни

Виллы

Floor plan
Стартовая цена: По запросу
Жилая площадь:

6 Спальни

Виллы

Floor plan
Стартовая цена: По запросу
Жилая площадь:

Посмотреть планы всех этажей

Payment Plan

Структурированный план оплаты — это мощный инвестиционный инструмент. При грамотном использовании он может значительно увеличить доходность вашего капитала (ROE). Не знаете, как извлечь из этого максимум? Мы объясним все бесплатно!

  • При бронировании

    20%

    Оплата
  • Во время строительства

    60%

    Оплата
  • При передаче

    20%

    Оплата

Получить профессиональную консультацию по недвижимости

Оставьте свои контактные данные, и консультант поможет вам выбрать подходящую недвижимость и сориентирует в процессе покупки.

    Спасибо за ваш интерес!

    Мы отправили вам письмо с подтверждением и скоро свяжемся с вами.

    Metropolitan Premium Properties

    Команда по недвижимости

    Я буду сопровождать вас шаг за шагом, чтобы вы могли принять уверенное решение о покупке недвижимости.

    Palm Jebel Ali , Дубай

    Palm Jebel Ali — роскошный рукотворный остров в Дубае площадью 13,6 кв. км, что в два раза больше легендарного Palm Jumeirah. Резиденты смогут наслаждаться пляжем, который раскинется на 90 км. На острове — более 80 отелей, знаковые достопримечательности и культурные центры, эко-курорты, живописные парки и многое другое. Также мастер-план предусматривает строительство филиала одной из самых престижных школ в эмирате — GEMS World Academy. Palm Jebel Ali с материковой частью Дубая свяжут мосты. После можно будет выехать на Sheikh Zayed Road, которая ведет в различные районы эмирата. Время в пути Международного аэропорта Аль-Мактум — около 40 минут на авто.

    Нажмите на метку, чтобы посмотреть маршрут и время в пути

    Изучите район

    Изучите все будущие проекты вокруг этой недвижимости

    О застройщике

    Государственный застройщик

    Nakheel Logo

    Nakheel

    Компания Nakheel Properties, основанная в 2000 году, — один из ведущих застройщиков Дубая. Она известна яркими и амбициозными проектами, в частности Palm Jumeirah, The World Islands и Dubai Islands. Также компания работает в сферах розничной торговли и гостиничного бизнеса. Благодаря поддержке правительства и стремлению создавать недвижимость мирового класса, Nakheel Properties вносит значительный вклад в развитие Дубая как мирового центра для жизни, туризма и бизнеса.

    • 56

      Реализованные проекты

    • 2000

      Год основания

    Подробнее о застройщике
    Nakheel Logo

    О компании Metropolitan Premium Properties

    Metropolitan Premium Properties — лицензированное агентство недвижимости в Дубае (RERA ORN 11899), входящее в Metropolitan Group, основанную в 2008 году. В компании работает более 1 000 специалистов в офисах в Дубае, Абу-Даби, Рас-эль-Хайме и Вене. Мы занимаемся продажей жилой и коммерческой недвижимости, инвестициями в проекты на стадии строительства, арендой и управлением недвижимостью. За время работы компания закрыла более 6 000 сделок на сумму свыше AED 15 млрд и получила более 120 отраслевых наград.

    О компании Metropolitan Premium Properties
    • 120 000+

      Довольных клиентов

    • 15 лет

      Опыта на рынке

    • 6000+

      Успешных сделок с недвижимостью

    • Более 15 млрд AED

      Успешных инвестиций в элитную недвижимость

    Наши услуги

    01

    Управление недвижимостью

    Полное управление недвижимостью — от оценки и поиска арендатора до контроля платежей и юридического сопровождения.

    • Подбор и проверка арендаторов
    • Регистрация EJARI и продление аренды
    • Решение технических и юридических вопросов
    Подробнее
    02

    Консалтинг

    Комплексная корпоративная и юридическая поддержка в ОАЭ — от регистрации бизнеса и открытия счетов до оформления виз, наследственных и нотариальных процедур.

    • Регистрация компаний и лицензирование
    • Открытие банковских счетов
    • Дарение недвижимости и завещания
    Подробнее
    03

    Эскроу и сопровождение сделок

    Эскроу-сервис и сопровождение сделок — полная проверка объекта и сторон, расчёт платежей, координация с DLD, банками и застройщиками, безопасная передача средств и регистрация права собственности.

    • Первичная и вторичная недвижимость
    • Наличные платежи и ипотека
    • Дистанционное оформление по доверенности
    Подробнее
    04

    Приемка объекта

    Содействие в процессе передачи недвижимости от застройщика или продавца — организация процедуры, проверка готовности объекта и сбор всей сопроводительной документации.

    • Проверка документов и объекта
    • Подключение коммунальных услуг
    • Получение актов и гарантий
    Подробнее
    05

    Снеггинг

    Профессиональная приёмка недвижимости перед передачей от застройщика — выявление строительных дефектов и контроль их устранения до окончания гарантийного периода.

    • Проверка инженерных систем
    • Контроль качества
    • Переговоры с застройщиком
    Подробнее
    06

    Ипотечное сопровождение

    Полное ипотечное сопровождение в ОАЭ — от подбора оптимальной программы и предварительного одобрения до координации с банками и выхода на сделку.

    • Ипотека на готовую недвижимость
    • Off-plan финансирование
    • Шариатские программы
    Подробнее
    07

    Дизайн интерьера

    Комплексное сопровождение по созданию интерьера — от концепции и 3D-визуализации до подбора мебели, закупок и полного контроля реализации проекта.

    • Дизайн-проект
    • Авторский надзор
    • Меблировка
    Подробнее
    08

    Резидентство в ОАЭ

    Полное сопровождение в оформлении всех видов резидентских виз — от подготовки документов, прохождения медосмотра до получения Emirates ID.

    • Виза инвестора в недвижимость
    • Золотая виза
    • Семейная виза
    Подробнее

    Наши достижения

    1-е место

    Премия Arada Broker Awards 2025

    2-е место

    One Broker Group 2024

    1-е место

    Премия Black Onyx 2024

    2-е место

    Omniyat Broker Awards 2024

    3-е место

    Топ-брокер года Alhamra 2023

    1-е место

    Премия TAG Top Partner 2023

    3-е место

    Награда DAMAC Broker Awards 2023

    3-е место

    IRTH Broker Awards Q3 2024

    Отзывы клиентов о нас

    4.7

    Star
    Севги Тосун — фантастический агент. Она помогла мне заключить выгодную сделку и руководила всем процессом передачи объекта от начала до конца. Она была чрезвычайно профессиональна и внимательна. Настоятельно рекомендую.
    Благодарим вас за предоставленную возможность оказать нам услугу по чистке ковров. Мы очень ценим ваше доверие и надеемся на дальнейшее сотрудничество.
    Мы получили наилучший сервис из возможных! Все в срок, с соблюдением договоренностей, ответственно и профессионально.
    В 2025 году я приобрел две квартиры в этом проекте через г-жу Махназ Энаяти. Я чрезвычайно доволен своей инвестицией и общим опытом. На протяжении всего процесса г-жа Энаяти оказывала исключительную поддержку, проявляя невероятное терпение, профессионализм и проницательность. Она тщат...
    Мы приобрели дом в 2025 году через эту компанию, и наш опыт был поистине превосходным. Махназ Энаяти проявила невероятный профессионализм, оказала всестороннюю поддержку и заслуживала доверия на протяжении всего процесса. Она шаг за шагом направляла нас, терпеливо отвечала на все наши...
    Я сотрудничала с Химабинду Джумджур из Metropolitan Properties над заданием по оценке недвижимости, и у меня остались прекрасные впечатления. Она компетентна, профессиональна и с ней очень легко работать. Она также была добра и отзывчива на протяжении всего процесса. Я с удовольствием...
    Работать с Кэрис Нейлор было просто замечательно. Она профессиональна, заинтересована в успехе и очень открыта. Она постоянно предоставляет обратную связь о ходе работы и действительно ориентирована на результат. Настоятельно рекомендую.
    Было очень приятно сотрудничать с Кэрис в поиске нашего первого инвестиционного проекта в Дубае. Она обладает отличными знаниями и пониманием местности, что очень помогло нам принять решение.
    Работать с Кэрис было одно удовольствие. Она профессиональна, компетентна и искренне заботится о том, чтобы найти для меня подходящее жилье. На каждом этапе она делала все возможное и даже больше. Я очень благодарна, что она была моим агентом!
    Файсал из компании Metropolitan оказал нам невероятную помощь в поиске недвижимости, оперативно отвечал на наши вопросы, внимательно выслушивал наши пожелания и в целом проявил высокий профессионализм. Мы обязательно обратимся к нему снова, когда будем искать недвижимость в следующий ...
    Я просто обожаю Кэрис. За последние 20 лет я работала со многими агентами в Дубае, и она действительно исключительная. Уровень обслуживания, который она предоставляет, не имеет себе равных, и при этом она просто очаровательна. Высший балл, Кэрис!
    Отличный риелтор в Дубае, искренне рекомендую Татьяну Гаджикурбанову. Татьяна - очень квалифицированный специалист, отлично ориентируется на рынке недвижимости ОАЭ и предоставляет действительно много полезной и подробной информации. Она подробно объясняет все тонкости, связанные с над...
    Несколько месяцев назад я познакомилась с агентом по недвижимости Татьяной Гаджикурбановой. С самого первого контакта Татьяна проявила себя как чрезвычайно общительная и ответственная личность. На мои электронные письма она отвечала практически мгновенно и сразу же предлагала удобные ...
    Кэрис проявила себя превосходно от начала до конца. Мы покупали свою первую недвижимость в Дубае и у нас было множество вопросов — она со всем справилась с огромным терпением и ясностью. Она действительно прислушалась к нашим пожеланиям и не тратила наше время на неподходящие варианты...
    С Кэрис было очень приятно общаться, она очень профессиональна и с ней приятно работать. Она оценила мои квартиры, организовала фотосессию, занималась маркетингом и сдала их в аренду всего за 2 недели. Настоятельно рекомендую всем своим родным и друзьям.