تاون هاوس محمية قطورة
مدينة الميدان, دبي

تاون هاوس محمية قطورة

كيتورا ريزيرف هو مشروع سكني راقي من قبل مجموعة ماج ويأتي كجزء من العلامة التجارية للعقارات الفاخرة والضيافة “كيتورا”.

سعر الإطلاق
13.66m
الحالة
اكتملتمكتمل

نظرة عامة على المشروع

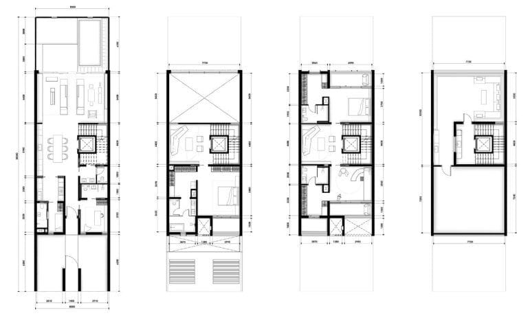
كيتورا ريزيرف هو مشروع سكني راقي من قبل مجموعة ماج ويأتي كجزء من العلامة التجارية للعقارات الفاخرة والضيافة “كيتورا”. يقع المشروع في ميدان، وتم إطلاق المشروع الذي تبلغ قيمته 3 مليارات درهم إماراتي (816.7 مليون دولار أمريكي) في الربع الرابع من عام 2022 ويخطط للحصول على أنواع العقارات التالية عند الانتهاء: تاون هاوس 4 غرف نوم مفروشة بالكامل – 114 وحدة تاون هاوس من 5 غرف نوم مفروشة بالكامل – 10 وحدات فقط اراضي مخصصة للفلل المميزة – 65 وحدة شقق من 1 إلى 4 غرف نوم – 476 وحدة توفر المرحلة الأولى من محمية كيتورا تاون هاوس متطورة للشراء، بمساحة إجمالية تتراوح بين 5,353 و 8,649 قدم مربع.

  • الموقع الاستراتيجي
  • مطور
  • نوع العقار
    شقق تاون هاوس
  • عدد غرف النوم
    5, غرفة نوم 4
  • المساحة تبدأ من
  • الحالة
    اكتملتمكتمل
  • رهن عقاري (تمويل عقاري)
    متاح للجميع

مخططات الطوابق

4 غرف نوم

تاون هاوس

Floor plan
أسعار البداية عند الطلب
منطقة المعيشة

5 غرف نوم

تاون هاوس

Floor plan
أسعار البداية عند الطلب
منطقة المعيشة

عرض جميع مخططات الطوابق بنقرة واحدة

هذا المشروع مؤهل للحصول على تمويل مرن

حلول رهن عقاري مُصمَّمة بحسب المتطلبات الفردية

احصل على استشارات متخصصة وتمويل مصمم لتلبية احتياجاتك

موافقة سريعة على الرهن

نُسرّع عملية الموافقة لتقترب أكثر من شراء منزل أحلامك.

أسعار فائدة حصرية

نحصل على عروض تفضيلية عبر أبرز بنوك الإمارات

لا تترتب أي رسوم عليك

خدمتنا مجانية 100% للعملاء؛ نتقاضى أتعابنا من جهة التمويل

خبرة تتجاوز 15 عامًا

مستشارونا الماليون خبراء موثوقون في سوق العقارات الإماراتية

دعم متكامل في كل خطوة

نيسّر أمورك... من الاستشارة الأولى إلى نقل الملكية.

نتعاون مع أبرز البنوك في الإمارات

Bank logo
Bank logo
Bank logo
Bank logo
Bank logo
Bank logo
Bank logo
Bank logo
Bank logo
Bank logo
Bank logo
Bank logo
Bank logo
Bank logo
Bank logo
Bank logo
Bank logo
Bank logo
Bank logo
Bank logo
Bank logo
Bank logo
Bank logo
Bank logo

تقدم Metropolitan Consulting إرشادات متخصصة ودعماً شاملاً لمساعدتك في الحصول على تمويل عقاري في الإمارات. من فهم أسعار الفائدة والتكاليف الأولية إلى إتمام الموافقات، نحن معك في كل خطوة.

معرفة المزيد

وسائل الراحة

هذه ليست سوى عدد قليل من وسائل الراحة المتوفرة في هذا السكن. للحصول على القائمة الكاملة للميزات والمعلومات التفصيلية، يرجى الاتصال بوكيلنا - سنقوم بتصميم الخيار الأفضل لاحتياجاتك.

  • مسبح لا متناهي icon

    مسبح لا متناهي

  • منصة المسبح icon

    منصة المسبح

  • منطقة للشواء icon

    منطقة للشواء

  • خدمة ركن السيارات icon

    خدمة ركن السيارات

  • حدائق icon

    حدائق

  • صالة ألعاب رياضية icon

    صالة ألعاب رياضية

  • مطاعم icon

    مطاعم

  • منتجع صحي icon

    منتجع صحي

احصل على توجيه عقاري محترف

اترك التفاصيل الخاصة بك، وسيساعدك مستشار في اختيار العقار المناسب والتنقل في عملية الشراء.

    شكرًا لاهتمامك!

    لقد أرسلنا إليك رسالة تأكيد بالبريد الإلكتروني وسنتواصل معك قريبًا.

    متروبوليتان بريميوم العقارية

    فريق العقارات

    سأرشدك خطوة بخطوة حتى تتمكن من اتخاذ قرار عقاري واثق.

    استكشف جميع التطورات المستقبلية حول هذا العقار

    عن المطور

    ماج Logo

    ماج

    MAG Lifestyle Development هي شركة تابعة لمجموعة معفق أحمد القداح (MAG)، الرائدة في مجال العقارات والهندسة والصناعة والتجارة وخدمات الشحن والضيافة. يتمتع مقر MAG Group في أبوظبي بنشاط في الشرق الأوسط منذ عام 1978. ومن جانبها، تشارك MAG Lifestyle Development في تطوير مختلف أنواع السكن في دبي، بدءًا من العروض المبتكرة بتكلفة معقولة وصولاً إلى العقارات الفاخرة.

    • 6

      المشاريع المنجزة

    • 1978

      سنة التأسيس

    المزيد عن المطور
    ماج Logo

    عن متروبوليتان بريميوم بروبرتيز

    تُعدّ متروبوليتان بريميوم بروبرتيز وكالة عقارية مرخّصة من مؤسسة التنظيم العقاري (ريرا) في دبي (رقم المكتب: 11899)، وتشكل جزءاً من مجموعة متروبوليتان التي تأسست عام 2008. يضم فريق الشركة أكثر من 1,000 متخصص يعملون من مكاتبنا في دبي وأبوظبي ورأس الخيمة وفيينا، ويقدمون خدمات متكاملة تشمل بيع العقارات السكنية والتجارية، والاستثمار في المشاريع قيد الإنشاء، وخدمات التأجير، بالإضافة إلى إدارة العقارات. وقد نجحت الشركة في إتمام أكثر من 6,000 صفقة عقارية بإجمالي استثمارات تجاوز 15 مليار درهم إماراتي، كما حصدت أكثر من 120 جائزة في قطاع العقارات.

    المزيد عنا
    عن متروبوليتان بريميوم بروبرتيز
    • أكثر من 120,000

      عميل راضٍ

    • 15 عامًا

      من الخبرة والتميز في السوق العقاري

    • الأرقام تتخطى 6,000

      صفقة عقارية مُبرمة باحترافيَّة تامَّة

    • أكثر من 15 مليار AED

      مُخَصَّصة للإستثمارات الإستراتيجيَّة ذات العوائد البارزة

    المزيد عنا

    خدماتنا

    01

    إدارة العقارات

    إدارة متكاملة للعقارات — من تقييم الوحدة واستقطاب المستأجرين إلى إدارة المدفوعات والمتابعة القانونية.

    • اختيار المستأجرين وإجراء عمليات التحقق اللازمة
    • تسجيل عقود الإيجار عبر نظام إيجاري وتجديدها
    • معالجة الجوانب الفنية والقانونية المتعلقة بالعقار
    اعرف المزيد
    02

    الاستشارات

    دعم قانوني ومؤسسي شامل في دولة الإمارات — من تسجيل الشركات وفتح الحسابات المصرفية إلى إجراءات التأشيرات والميراث وخدمات الكاتب بالعدل.

    • تأسيس الشركات وإصدار التراخيص
    • فتح الحسابات المصرفية
    • هبة العقارات وإعداد الوصايا
    اعرف المزيد
    03

    خدمات الضمان العقاري ونقل الملكية

    إدارة كاملة لإجراءات الضمان ونقل الملكية — تشمل التدقيق القانوني للعقار والأطراف ذات الصلة، احتساب المستحقات، التنسيق مع دائرة الأراضي والأملاك، التعامل مع البنوك والمطورين، وضمان تحويل آمن للأموال وتسجيل سند الملكية.

    • عقارات قيد الإنشاء وعقارات ثانوية
    • معاملات نقدية وتمويل عقاري
    • تنفيذ الإجراءات عن بُعد بموجب وكالة قانونية
    اعرف المزيد
    04

    تسليم العقار

    متابعة عملية تسليم العقار — تنظيم عملية التسليم، والتحقق من جاهزية العقار، واستلام كافة الوثائق من المطور أو البائع.

    • التحقق من المستندات وحالة العقار
    • تفعيل خدمات المرافق
    • استلام مستندات التسليم والضمانات
    اعرف المزيد
    05

    فحص العيوب

    فحص العيوب الفنية بحرفية عالية قبل التسليم — تحديد العيوب الإنشائية والإشراف على تصحيحها خلال فترة الضمان.

    • فحص الأنظمة الهندسية
    • مراقبة جودة التنفيذ
    • التفاوض مع المطور بشأن أعمال المعالجة
    اعرف المزيد
    06

    المساعدة في التمويل العقاري

    دعم متكامل للحصول على التمويل العقاري في دولة الإمارات — من اختيار البرنامج الأنسب والحصول على الموافقة المبدئية إلى التنسيق مع البنوك واستكمال إجراءات المعاملة.

    • تمويل العقارات الجاهزة
    • تمويل العقارات قيد الإنشاء
    • برامج متوافقة مع أحكام الشريعة الإسلامية
    اعرف المزيد
    07

    التصميم الداخلي

    خدمات شاملة للتصميم الداخلي والتأثيث — من إعداد المفهوم التصميمي والتصورات ثلاثية الأبعاد إلى اختيار الأثاث وإدارة المشتريات والإشراف الكامل على التنفيذ.

    • إعداد مشروع التصميم
    • الإشراف المعماري على التنفيذ
    • خدمات التأثيث والتجهيز
    اعرف المزيد
    08

    تأشيرات الإقامة

    دعم متكامل لتحصيل مختلف أنواع تأشيرات الإقامة في دولة الإمارات — من إعداد المستندات وإجراء الفحوصات الطبية إلى إصدار بطاقة الهوية الإماراتية.

    • تأشيرة مستثمر عقاري
    • التأشيرة الذهبية
    • تأشيرة أفراد الأسرة
    اعرف المزيد

    إنجازاتنا

    المركز الأول

    جائزة Arada للوسطاء العقاريّين - 2025

    المركز الثاني

    2024 - One Broker Group جائزة

    المركز الأول

    2024 - The Black Onyxجائزة

    المركز الثاني

    جائزة Omniyat للوسطاء العقاريّين - 2024

    المركز الثالث

    جائزة Alhmra لأفضل وسيط عقاري لعام 2023

    المركز الأول

    2023 - TAG Top Partner جائزة

    المركز الثالث

    جائزة DAMAC للوسطاء العقاريَّن - 2023

    المركز الثالث

    جائزة IRTH للوسطاء القاريّين - الرّبع الثالث 2024

    ما يقوله العملاء عنا

    4.7

    Star
    كانت سيفجي توسون وكيلة عقارية رائعة. لقد حصلت لي على صفقة ممتازة وأدارت عملية التسليم بالكامل من البداية إلى النهاية. كانت محترفة للغاية ومهتمة بعملائها. أوصي بها بشدة.
    نشكركم على إتاحة الفرصة لنا لتقديم خدمة تنظيف السجاد بالشامبو. نحن نقدر ثقتكم ونتطلع إلى خدمتكم مجدداً في المستقبل.
    لقد حصلنا على خدمة متميزة من الممكن! كل شيء في متناول اليد، مع مراقبة الجودة، بصراحة واحترافية
    في عام ٢٠٢٥، اشتريت وحدتين من هذا المشروع عن طريق السيدة مهناز عنايتي. أنا راضٍ للغاية عن استثماري وتجربتي بشكل عام. طوال العملية، قدمت السيدة عنايتي دعمًا استثنائيًا بصبرٍ واحترافيةٍ وبصيرةٍ ملحوظة. لقد عرضت عليّ بعنايةٍ الخيارات الأنسب، وسهّلت كل مرحلة من مراحل الصفقة بشكلٍ كبير. أو...
    اشترينا منزلنا عام ٢٠٢٥ عن طريق هذه الشركة، وكانت تجربتنا رائعة بكل المقاييس. لقد كانت مهناز عناياتي محترفة للغاية، وداعمة، وجديرة بالثقة طوال العملية. أرشدتنا خطوة بخطوة، وأجابت على جميع استفساراتنا بصبر، وجعلت كل شيء يسير بسلاسة ودون أي توتر. نحن ممتنون جدًا لمهناز وفريقها بأكمله عل...
    لقد تعاونتُ مع هيمابيندو جومجور من شركة متروبوليتان بروبرتيز في مهمة تقييم عقاري، وكانت تجربة رائعة. فهي تتمتع بمعرفة واسعة، ومهنية عالية، والتعامل معها في غاية السهولة. كما أنها كانت لطيفة ومتعاونة طوال فترة العمل. يسعدني العمل معها مجدداً.
    كان العمل مع الآنسة كاريس نايلور تجربة رائعة بكل المقاييس. فهي محترفة، ومتفانية، وشفافة للغاية. تقدم باستمرار ملاحظات حول التقدم المحرز، وتركز بشكل كبير على تحقيق النتائج. أوصي بها بشدة.
    يسرنا العمل مع كاريس في إيجاد أول استثمار لنا في دبي. معرفتها الجيدة وفهمها للمناطق كانا مفيدين للغاية في اتخاذ القرار.
    كان العمل مع كاريس متعة حقيقية. محترفة، وذات خبرة واسعة، واهتمت بصدق بإيجاد المكان المناسب لي. بذلت قصارى جهدها في كل خطوة. ممتنٌّ لأنها كانت وكيلتي العقارية!
    كان فيصل من شركة متروبوليتان متعاونًا للغاية في بحثنا عن عقار، إذ كان سريع الاستجابة لاستفساراتنا، ويستمع جيدًا لما نرغب به، ويتسم بالمهنية العالية في تعامله. سنستعين بخدماته بالتأكيد مرة أخرى عند بحثنا عن عقار في المستقبل.
    أنا معجبة جدًا بكاريس. لقد تعاملت مع العديد من وكلاء العقارات في دبي على مدار العشرين عامًا الماضية، وهي حقًا استثنائية. مستوى الخدمة التي تقدمها لا يُضاهى، وهي لطيفة للغاية في تعاملها. تستحقين أعلى التقييمات يا كاريس!
    فندق ممتاز في دبي، يوصى به تاتيان جاجيكوربانوفو. تاتيانا - أخصائية مؤهلة للغاية، موجهة بشكل رائع نحو عدم القدرة على العمل وتسمح بالتميز العديد من المعلومات المفيدة والجيده. نرحب بالتفصيل بجميع الأمور المتعلقة بالشراء المحتمل، ونجيب على جميع الأسئلة ونساعد في الشراء قرار جديد بدون داع....
    قبل بضعة أشهر، تعرفت على وكيلة العقارات تاتيانا غادجيكوربانوفا. منذ اللحظة الأولى، أثبتت تاتيانا أنها تتمتع بمهارات تواصل ممتازة ومسؤولية عالية. ردت على بريدي الإلكتروني فورًا تقريبًا، وعرضت عليّ على الفور وسائل تواصل مريحة - البريد الإلكتروني، والرسائل الفورية، والهاتف. تمكّنا من منا...
    كانت كاريس رائعة من البداية إلى النهاية. كنا بصدد شراء أول عقار لنا في دبي، وكانت لدينا أسئلة كثيرة، لكنها تعاملت مع كل شيء بصبر ووضوح كبيرين. استمعت جيدًا لما نريده، ولم تضيع وقتنا بخيارات غير مناسبة. كانت العملية سلسة وشفافة وخالية من التوتر، وهو أمر نادر في مجال العقارات. إذا كنت ت...
    كان التواصل مع كاريس ممتعاً للغاية، فقد كانت محترفة جداً ومسلية في التعامل. قامت بتقييم شقتي، وتنظيم جلسة تصوير، وتسويقها، وتأجيرها، كل ذلك في غضون أسبوعين فقط. أوصي بها بشدة لجميع أفراد عائلتي وأصدقائي.